Professional Drafting Services for Home Addition Permits & Residential Projects

Remodeling Plans

Remodeling Construction Plans & Room Additions

With 20+ years of experience with Commercial Design, City Codes, Residential and Commercial construction documents and Multi Family House Floor Plans Design, our teams deliver the highest quality and most accurate architectural construction drawings for your project. 

We will complete your project on Schedule, on Budget and on Time.

Affordable Residential & Commercial Drafting

Expert Drafting Services for Residential & Commercial Remodeling Projects

  • Affordable remodeling drafting services.
  • Permit-ready ADU construction plans in Southern California
  • Professional drafting for kitchen remodel and wall removal
  • Bathroom addition and remodeling drafting services
  • Attic conversion plans for residential homes
  • Los Angeles county patio cover permit requirements
  • Residential Addition
  • Room addition (add on)

Transform Your Home with Our Expert Remodeling Services

AU Design Drafting is experienced in room additions, bathroom or kitchen remodels, home add-ons and removing load-bearing walls. Our team is ready to help you modernize, expand your living area or redesign your layout.

Our Services Include:

Home Additions

Expand your home with a new playroom, guest suite or home office designed to fit seamlessly with your existing architecture

Bathroom Remodels

 Transform your bathroom into a luxurious retreat. We handle updating fixtures, adding features or complete overhauls.

Room Additions

Seamlessly blend new spaces with your existing home structure. Get the room you need without compromising on style.

Home Add-Ons

From new bedrooms to extra living areas, we ensure a smooth and hassle-free process for add-on solutions of all sizes .

auhomeomage b

Wall Removal

Open up your living space by removing walls between the kitchen and living room, creating a more spacious and inviting environment.

auhemeomage f

Attic Conversion

An attic conversion is a smart way to maximize your property’s potential. Create space without the cost of a full extension.

adu banner

Home Remodeling Plans

From initial concepts to final touches, our team will help you design and implement a plan that brings your vision to life.

Removing a Load-Bearing Wall

We remove a load-bearing walls safely, ensuring structural integrity and compliance with building codes.

Patio Cover Design

Transform your outdoor living space with a durable and stylish patio cover that adds comfort, shade, and value to your home. 

Our Process for Creating a Remodeling Plan

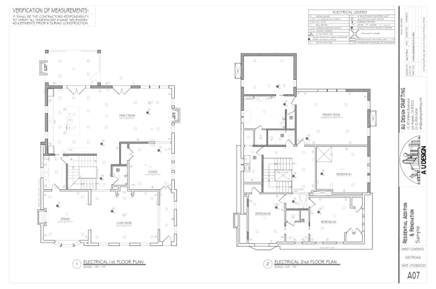
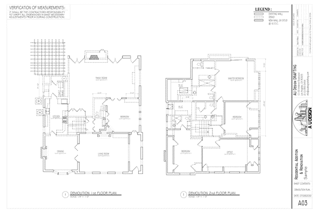
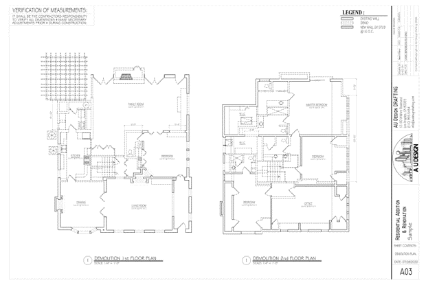
As-Built Drawings

First, we create as-built drawings of your existing house. This helps us understand your current layout and keep the renovation under control. These detailed drawings serve as the foundation for our planning process and ensure accuracy.

Plan Development

Once the initial plans are ready, we will make changes based on our conversations with you to ensure everything aligns with your vision. We take your feedback seriously and incorporate your ideas and preferences to create a customized plan.

Plan Development image
audesign Walkthrough image

Walkthrough

Finally, we will walk through the project with you, discussing every detail to make sure you are satisfied with the proposed remodeling plan. This step allows us to address any concerns and make any necessary adjustments before construction begins.

Permitting and Approvals

We handle all the necessary permits and approvals from local authorities, ensuring that your project complies with all regulations and standards.

Construction

Once all plans are approved and permits are secured, we begin the construction phase. Our skilled team of professionals works diligently to bring your vision to life, with regular updates and open communication throughout the process.

Additional Information

House Addition Drafting Services

Look for companies or professionals that offer drafting services specifically for house additions. We are local firms or freelancers who can create detailed plans and blueprints for your home addition project. We are here to help.

House Addition Design Ideas

Explore various design ideas and inspiration for adding an extension to your house. This can help you visualize different possibilities and choose a design that suits your needs and preferences.

House Addition Permits and Regulations:

Research the building permits and regulations required for adding an extension to your house. It's essential to ensure that your project complies with local building codes and regulations.

House Addition Cost Estimation

Look for resources that provide cost estimates for house additions. This can help you plan your budget and determine the feasibility of your project.

House Addition Architects

If you need assistance from an architect, search for professionals who specialize in house additions. We can help you with the design, planning, and execution of your project.

House Addition Construction Contractors

If you're looking for a designer to handle the construction plans, search for reputable construction companies experienced in house additions. Remember to always verify the credibility and reputation of any service provider you consider working with.

Ready to Get Your City Permits Approved?

Avoid costly delays and unnecessary paperwork — let AU Design Drafting handle your entire permitting process. Contact us today for a consultation and let our professionals guide your project from submission to approval.

Why Choose AU Design Drafting for Your Home Addition?

AU Design Drafting is trusted for home drafting solutions, delivering precision, reliability, and innovative designs. Our focus on quality and client satisfaction allows us to successfully complete residential projects of all styles and budgets.

Experienced Team

Certified drafters with extensive residential project expertise.

Accuracy & Compliance

Every plan meets rigorous safety and quality standards.

Timely Delivery

Projects completed on schedule without compromising detail or precision.

Tailored Solutions

Drafting services customized to your home’s architecture and your vision.

Accurate plans without delays or hidden costs

What Our Customers Say
Frequently Asked Questions
What types of CAD drafting services do you offer?

We provide a full range of CAD design and drafting services, including architectural, structural, mechanical, and electrical drawings. Whether you need 2D floor plans, 3D models, or as-built documentation, we’ve got you covered.

Yes, our team specializes in both 2D CAD drafting for detailed technical drawings and 3D CAD modelling for visual renderings and virtual prototypes.

We work with a variety of sectors, including architecture, construction, civil engineering, and interior design.

The cost of CAD drafting depends on factors such as drawing complexity, project scope, software used, and required detail level. We provide transparent, tailored quotes to suit your budget.