Architectural CAD Drafting Services

Complete Drafting Services in Los Angeles & Southern California

Precision Drafting for Residential & Commercial Projects Across SoCal

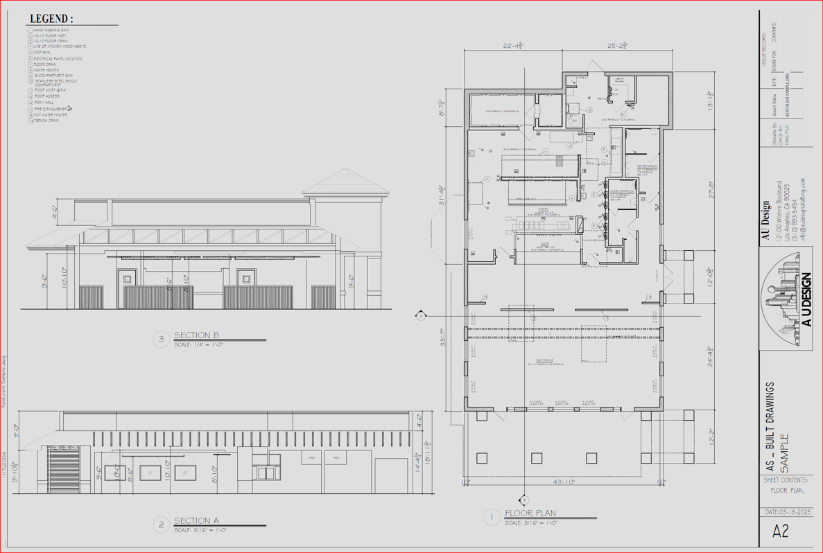
Searching for drafting services near you? At AU Design Drafting, we provide expert architectural CAD drafting services, including construction drawings, site plans, as-built drawings, and shop drawings for commercial and residential projects. Our team works closely with architects, engineers, interior designers, homeowners, and contractors to create accurate, permit-ready plans. Whether you need as-built documentation for a remodel, site plan for permit approval, or detailed construction drafting services, we deliver precision and compliance to help your project succeed.

Unlock Top-Tier Precision with AU Design Drafting

Serving Los Angeles, Orange County, Riverside & San Diego

We specialize in:

Our drafting team uses advanced software to produce precise construction documents, blueprints, and design layouts that meet local building codes city permit requirements.

Get your projects approved faster with our accurate and permit-ready drafting solutions.

We provide the comprehensive drafting design you need for successful commercial and industrial projects.

Whether it's a home renovation or a new custom house, our detailed drafting ensures a smooth build.

We provide professional drafting services, construction drawings, site plans, and as-built drawings for both commercial and residential projects in Los Angeles and Southern California. Our team works closely with architects, engineers, interior designers, homeowners, and contractors to turn visions into permit-ready plans. From architectural site plans and layout drawings to detailed as-built documentation, we ensure accuracy and compliance with local building codes. Whether you need plans for a remodel, new construction, or tenant improvement, our drafting company delivers precise drawings that simplify the permit process and support successful projects. Contact us today for expert drafting solutions.

Our construction drawings services deliver precise plans and detailed documentation for residential, commercial, and industrial projects. From architectural layouts to structural details, we ensure every construction drawing meets industry standards and supports smooth project execution. By outsourcing construction drawings to our experienced drafting team, you gain accurate 2D drafting, clear specifications, and cost‑effective solutions that keep your project on schedule. Whether you need CAD drafting for new builds, renovations, or complex engineering projects, our construction drawings provide the clarity and precision you can rely on.

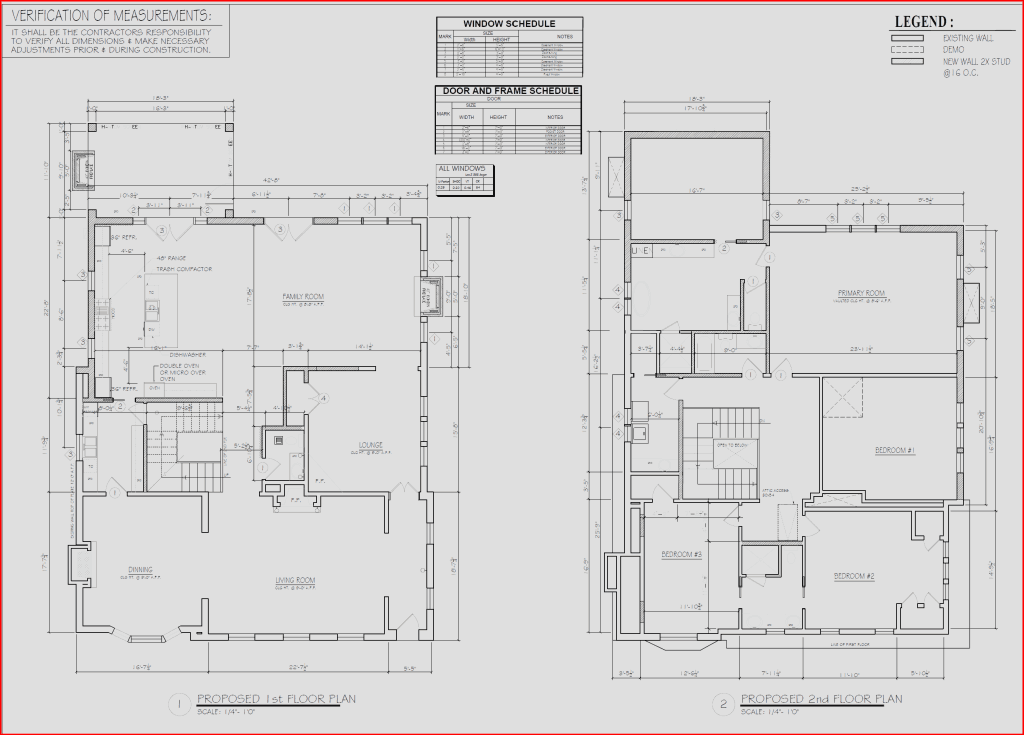
Design your dream home with precision through our custom house floor plan drafting services. We create detailed architectural CAD drawings tailored to your unique layout, including open floor plans, interior elevations, and reflected ceiling plans. Our drafting team collaborates with architects, engineers, interior designers, and contractors to deliver accurate plans for new builds, remodels, and luxury residences. Every drawing meets local building codes and is prepared for permit approval, ensuring a smooth construction process. From space planning to furniture layout, we provide the technical foundation for exceptional home design.

Looking for accurate, permit-ready plans for your home renovation or remodeling project? A.U. DESIGN we specialize in house renovation drafting services that transform your ideas into detailed, professional plans. Whether you’re planning a kitchen remodel, bathroom upgrade, or a full home renovation, our team delivers precise as-built drawings, home addition plans, and architectural drafting tailored to your vision.

We provide professional drafting services for interior designers, including detailed interior floor plans, interior elevations, and reflected ceiling plans for residential and commercial projects. Our team creates accurate CAD drawings for furniture layouts, lighting plans, and custom design concepts, helping designers visualize and execute their ideas. Whether you need a couch and floor plan for space planning or a complete interior drafting package, we deliver precision and permit-ready documentation. We work closely with architects, engineers, homeowners, and contractors to support every stage of design and construction.

Schedule a Free consultation Today!

Permitting and Approvals

We rely on the most advanced technology available to produce precise results.

CAD design services

  • Computer-aided design services
  • Freelance CAD designer
  • Professional drafting services
  • 2D and 3D CAD services

Drafting and 2D services

  • Template drawing creation
  • Initial drawing setup
  • CAD drawing customization
  • Drawing layers and dimensioning
  • Paper space and viewports setup
  • CAD plot styles and specifications
  • Blueprint drafting services

Why Choose Us

Skilled in communicating with an engineering staff or project managers.

Extensive background in drafting & design and extensive experience on a wide range of projects in Los Angeles and Southern California.

A full range of CAD and GRAPHICS design services for projects of all sizes and budgets.

15 years of experience working with AutoCAD, the industry standard in 3D CAD design, drafting, modeling, architectural drawing, and engineering drawings.

  • Architectural as-built surveys
  • Architectural shop drawings
  • Convert old drawings to CAD
  • Blueprint conversions
  • 2D floor plans to 3D models
  • DWG to other formats
  • DXF to other formats
  • CAD file conversion services
  • Import and export CAD files
  • Outsource drafting services
  • Improve CAD workflow
  • Increase drafting productivity
  • Save time and money on CAD
  • CAD efficiency consulting

Why Choose AU Design Drafting?

  • Fast turnaround & accurate plans
  • Local expertise in SoCal building codes
  • Affordable pricing for homeowners & contractors
  • Trusted by architects, engineers & developers
  • Remote & in-person drafting options available

Architectural drafting services

  • CAD drafting services Los Angeles
  • House plan drafting Orange County
  • Residential drafting services San Diego
  • Outsourcing architectural drawings SoCal
  • Best drafting companies in Southern California
  • Permit-ready drafting services Riverside County

Accurate Design, On Time and On Budget

What Our Customers Say
Frequently Asked Questions
What types of CAD drafting services do you offer?

We provide a full range of CAD design and drafting services, including architectural, structural, mechanical, and electrical drawings. Whether you need 2D floor plans, 3D models, or as-built documentation, we’ve got you covered.

Yes, our team specializes in both 2D CAD drafting for detailed technical drawings and 3D CAD modelling for visual renderings and virtual prototypes.

We work with a variety of sectors, including architecture, construction, civil engineering, and interior design.

The cost of CAD drafting depends on factors such as drawing complexity, project scope, software used, and required detail level. We provide transparent, tailored quotes to suit your budget.